Lokal na Parterze z Parkingiem 

Wrocław, Wrocław-Fabryczna

1 200 000 PLN

Numer oferty11
Typ transakcjiSprzedaż
Cena1 200 000 PLN
Powierzchnia120 m2
Cena za m210 000 PLN / m2
Piętroparter/3
Rok budowy1990
Stan lokaludo odświeżenia
Typ budynkublok
Rynekwtórny
Typ drogiasfaltowa
Forma własnościwłasność
Parkinginny
Liczba miejsc parkingowych30
Prądjest
Wodamiejska
Kanalizacjamiejska
Typ Drogiasfaltowa
Typ Lokalubiurowo-usługowy, biurowy, handlowo-biurowe
Ogrzewaniegazowe
Lokal na Parterze z Parkingiem  (Wrocław, Wrocław-Fabryczna)

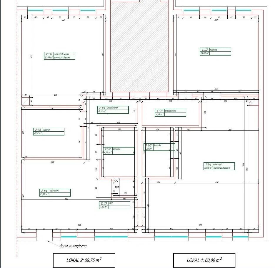
Mam na sprzedaż lokal 120 metrowy mieszczący się przy ul Pilczyckiej.



Lokal składa się z dwóch osobnych 60metrowych lokali, aktualnie połączonych.


Do lakolu można wejść bezpośrednio z przyległego parkingu oraz od tyłu.


Miejsce świetnie się sprawdzi jako siedziba firmy.


Aktualnie w lokalu jest prowadzone przedszkole. Umowa jest do końca czerwca.


Najemca wynajmuje lokal od 9 lat i dalej chce wynajmować.


Aktualnie od najemcy pobierana jest opłata wysokości 5 800zł netto/brutto. + media


Właściciel nie jest podatnikiem VAT



Osoba który kupi lokal ma zagwarantowany najem przez kolejne lata lub może lokal wykorzystać dla własnych celów.


Można też samemu wykorzystać jeden lokal a wynająć tylko drugi.


Budynek znajduje się na ulicy Pilczyckiej pomiędzy Pilczycami i Kozanowem.


Polecam -Świetna lokata kapitału za dobra cenę.


Zapraszam na prezentacje.


Ireneusz Gwardyński


Treść niniejszego ogłoszenia nie stanowi oferty handlowej w rozumieniu Kodeksu Cywilnego.
Oferta wysłana z programu IMO dla pośredników.
Wrocław, Wrocław-Fabryczna

Kontakt